Work
Far Nordic ADU
Our NOMAD Studio
About Us
Contact / Location
Work
Far Nordic ADU
Our NOMAD Studio
About Us
Contact / Location
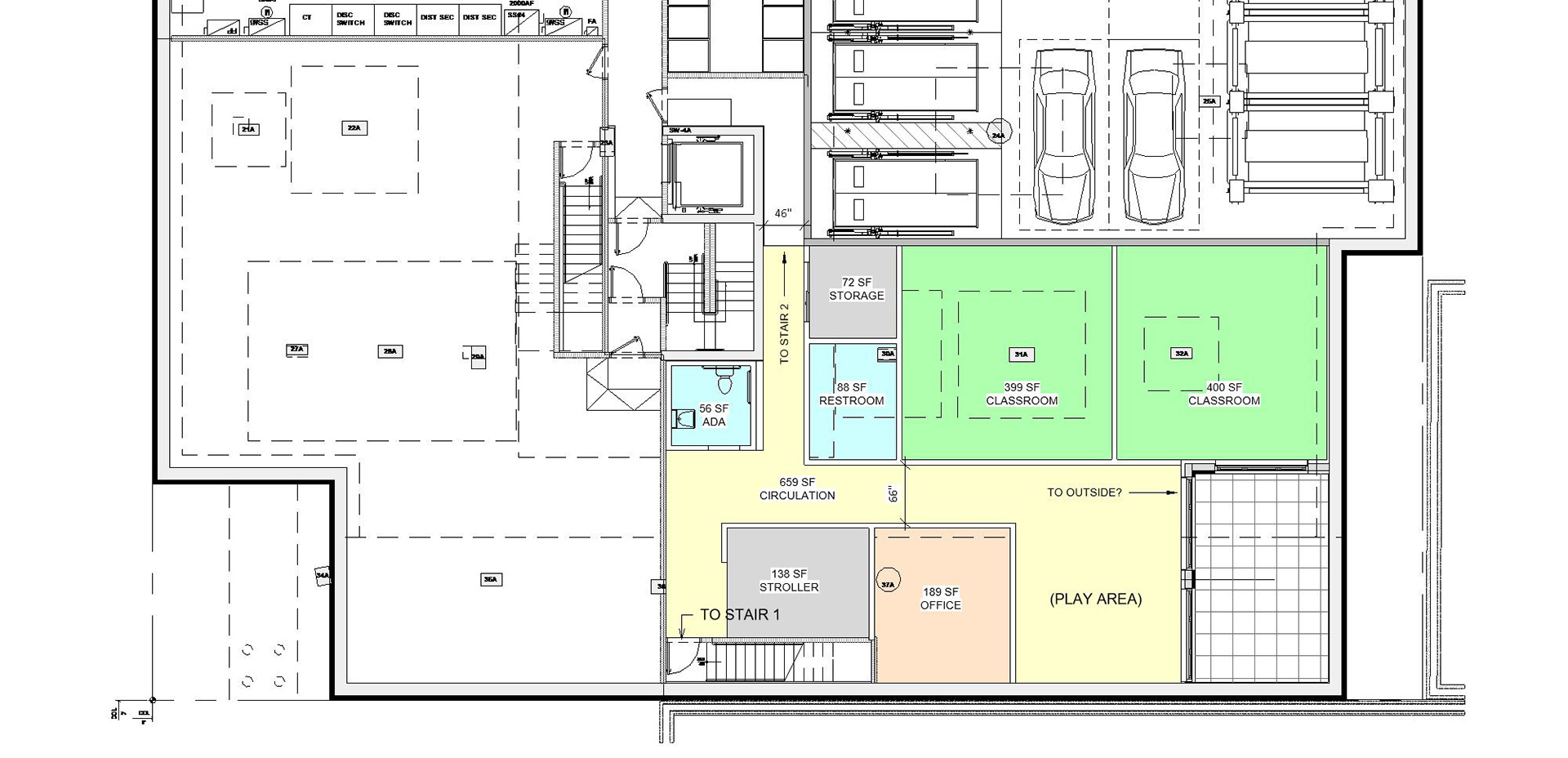
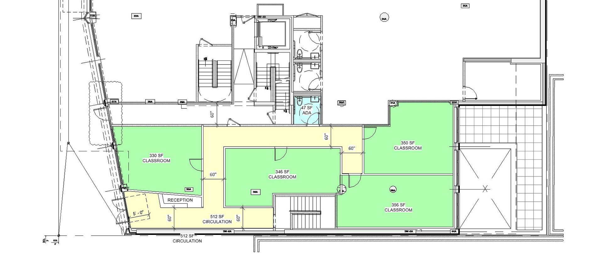
Pre-K & Education
You may also like
Residential Builds
2025
Contact Us
2025
Accessory Dwelling Units (ADU)
2025
Residential Interiors
2025
List of Services
2025
Far Nordic ADU
2026
Our NOMAD Studio
2026
Retail & Services
2026
↑
Back to Top